
【產品用途】
集團生產的美標電站閘閥:手動、對接焊連接形式、明桿楔式剛性單閘板,閥座密封面材料為硬質合金,公稱壓力1500LB~2500LB,閥體材料為碳素鋼的高溫高壓電站閘閥。
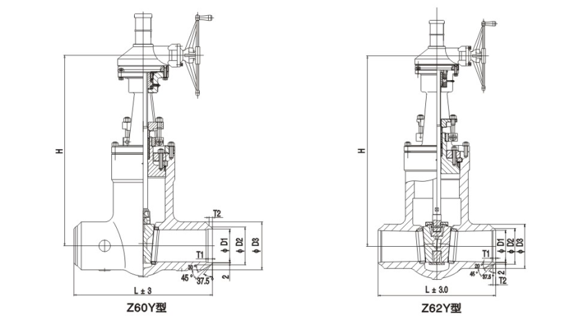
【結構特點】
高溫閘閥也稱電站專用閥門,主要用于火力電站各種系統的管路上,切斷或接通管路介質。適用介質:水、蒸汽等非腐蝕性介質。電站閥門與其他閥門產品相比的特點是高溫高壓,獨特的自密封設計,壓力越高,密封越可靠。由于性能技術特性,工況的特殊使產品也形成了其他產品所代替不了的特點。
1、啟閉無摩擦。這一功能解決了傳統閥門因密封面之間相互摩擦而影響密封面的問題。
2、上裝式結構。對裝在管路上的閥門可直接在線檢查與維修,能有效減少裝置停車,降低成本。
3、單座閥設計。消除了閥門中腔介質因異常升壓而影響使用安全的問題。
4、低扭矩設計。特殊結構設計的閥桿,只需配一個小手把閥門就能輕松啟閉。
5、楔形密封結構。閥門是靠閥桿提供的機械力,將閘板楔壓到閥座上而密封,使閥門的密封性不受管線壓差變化的影響,在各種工況下密封性能都有可靠保證。
6、密封面的自清潔結構。當閘板傾離閥座時,管線中的流體沿閘板密封面成360度均勻通過,不僅消除了高速流體對閥座局部的沖刷,也沖走了密封面上的聚集物,達到自清潔的目的。
【設計標準】
設計標準:API 600/ASME B16.34
結構長度ASME B16.10
對焊連接尺寸ASME B16.5
試驗與檢驗API 598
壓力-溫度:ASME B16.34
【性能參數】
|
型號 |
CLASS |
適用溫度/℃ |
適用介質 |
閥體 |
|
Z61Y-1500LB |
1500LB |
≤570 |
水、蒸汽 |
WC9 |
|
Z61Y-2500LB |
1500LB |
≤57 |
水、蒸汽 |
WC9 |
【主要零件材料】
|
型號 |
材料 |
||||
|
閥體 |
閥板 |
閥蓋 |
閥桿母 |
填料 |
|
|
Z61Y-1500LB |
WC9 |
WC9 |
WC9 |
38CrMoA1A |
柔性石墨 |
|
Z61Y-2500LB |
WC9 |
WC9 |
WC9 |
38CrMoA1A |
柔性石墨 |
【主要外形和連接尺寸】
|
DN |
L |
D |
H |
D0 |
重量/Kg |
|
50 |
280 |
82 |
585 |
300 |
42 |
|
65 |
340 |
110 |
650 |
320 |
53 |
|
80 |
475 |
130 |
680 |
400 |
130 |
|
100 |
500 |
170 |
755 |
450 |
180 |
|
125 |
600 |
195 |
830 |
500 |
190 |
|
150 |
700 |
225 |
1050 |
550 |
320 |
|
175 |
750 |
255 |
1050 |
600 |
400 |
|
200 |
800 |
285 |
1050 |
650 |
550 |
|
225 |
850 |
300 |
1100 |
700 |
600 |
【結構圖片】

